Auf Lager:
1
Brussels Housing
Atlas of Residential Building Types. Second and expanded edition
Produkt bewerten
Auf Lager:
1
Zustellung: Di, 28.04.2026
Versand: Kostenlos
-16.2 %
CHF 102.–
CHF 85.50
Beschreibung
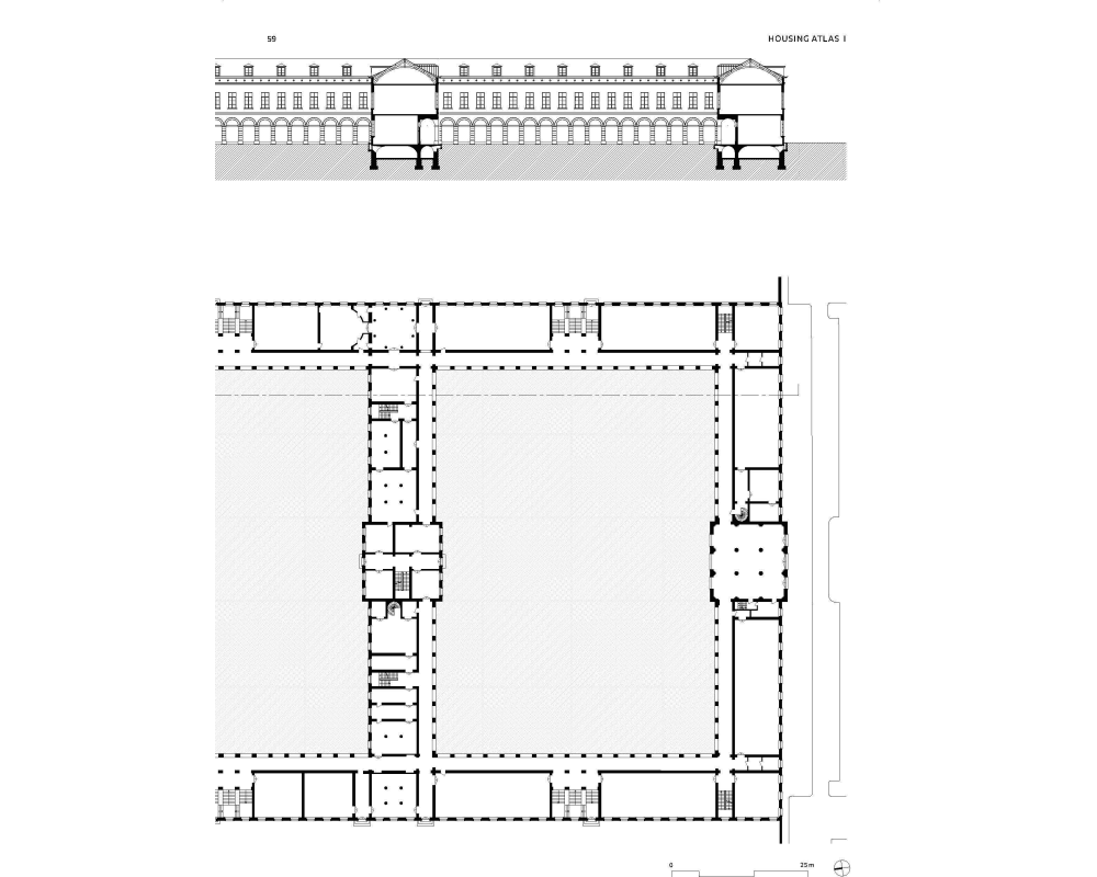
Modern urban terraced houses or row houses emerged in Europe from the 17th century onwards. Usually two to three storeys high and with a garden at the back, they formed the traditional urban block. In Brussels, this bourgeois type of housing took on a particularly varied and inspiring form - including the well-known Art Nouveau residences - which composes the DNA of the city to this day. This publication analyses 121 selected examples illustrating the emergence of the terraced house and its further development in other forms of housing. The result is a broad panorama and a history of the architecture and development of the city of Brussels with its particularly heterogenous cityscape. This expanded edition comprises a new chapter by Kristiaan Borret, the city's former "bouwmeester". 13 new case studies were added and the content was updated. A project index facilitates quick navigation. With four photo essays by the well-known Belgian photographer Maxime Delvaux. All plans have been drawn in standard scales, especially for the publication. An atlas of exemplary historical and contemporary housing typologies. Substantially expanded edition of the successful typological manual.
Spezifikationen
Sprache
- Englisch
Autor
- Gérald Ledent
- Alessandro Porotto
- Kristiaan Borret
Zielgruppe
- Architekten
- Stadtplaner
- Planungsbehörden Brüssel
Auflage
- 2
Erscheinungsjahr
- 2025
Format
- Buch (Hardcover)
Anzahl Seiten
- 424











