Ausverkauft
Mass Housing in Ukraine
Building Typologies and Catalogue of Series
Produkt bewerten
Ausverkauft
Beschreibung
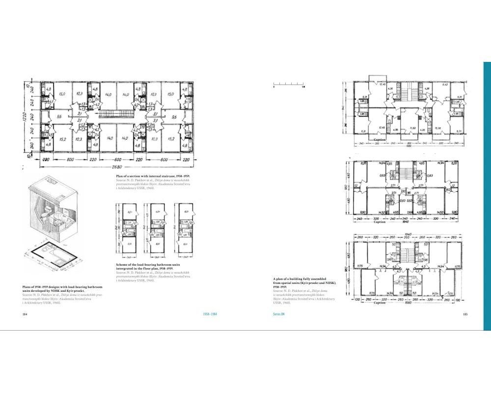
Housing is the most omnipresent urban typology. Housing is also the essential architecture of the human condition. Perhaps more than any other architectural species, housing determines the ways urbanites construct their lives and build their shared futures. The all-out war in Ukraine, started by the Russian Federation in 2022 has disproportionally affected housing and residential infrastructure. The destruction is so targeted, and the damage so significant that it has disfigured entire neighbourhoods and erased entire cities. With the scale of damage and loss in mind, and the future wide-ranging reconstruction that will inevitably take place after the war, this study examines the history and typologies of mass housing in Ukraine. It does so in order to evaluate what is lost, explain the diversity of modes of urban living that exist in Ukrainian cities, and finally, reconsider the narrative of how Ukrainian housing came about. The study covers the period of the last 100 years: the time of the most dramatic expansion and change in character of Ukrainian cities. It begins with the experimental buildings constructed in the Soviet Central and Eastern Ukraine and Polish Western Ukraine in the 1920s and 1930s, continues by looking at type projects from the Stalin era, as well as the serial apartment blocks built during the reigns of Khrushchev and Brezhnev and in the late USSR. Finally, it showcases individually designed, yet also typical residential buildings from the turbo-capitalist period of the 1990s and 2000s. With the help of archival materials—texts, blueprints, and photographs—as well as contemporary documentation, the authors analyse 30 examples of Ukrainian-designed or modified housing types. Through uncovering the Ukrainian context, as well as the work of Ukrainian architects, design institutions, contractors, and developers, the history of Ukrainian housing is emancipated from the Russian narrative of the Soviet past. By doing so, we aim to write the history of a specifically Ukrainian building tradition and contribute to embedding it in the context of all-European architectural history. This title is part of the "Histories of Ukrainian Architecture" programme initiated by DOM publishers in response to Russia’s attack on Ukraine’s sovereignty on 24 February 2022.
Spezifikationen
Sprache
- Englisch
Autor
- Philipp Meuser
- Kateryna Malaia
Kollektion
- Grundlagen/Basics
Auflage
- 1
Erscheinungsjahr
- 2024
Erscheinungsland
- Deutschland
Format
- Buch (Softcover)
Anzahl Seiten
- 408





















